博客首页
融汇官网
关于
登录
菜单
博客首页
融汇官网
关于
融汇
发布于 2025-09-08
/
16 阅读
0
0
分享
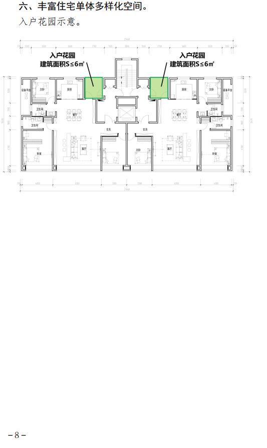
石家庄市自然资源和规划局《优化住宅空间利用规划管理补充措施》(试行)
#行情/政策
#产品/设计
融汇3.0专业致胜-地产价值放大器
石家庄优化住宅空间利用规划管理若干...
评论